物件検索
- 投資用
- 区分マンション(OC)
自由ヶ丘第5マンション
2300万円
- 所在地
- 東京都目黒区自由が丘2-1-19
- 沿線・駅
- 東横線・大井町線「自由が丘」駅 徒歩10分
東横線「都立大学」駅 徒歩13分 - 間取り
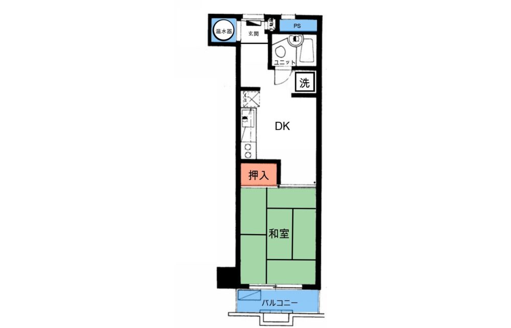
- 1DK
- 構造・規模
- 鉄筋コンクリート造7階建
- 築年数
- 1978年7月
- 総戸数
- 49戸
- 専有面積
- 28.09㎡
- 土地権利
- 所有権
- 用途地域
- 第一種住居地域
- 管理会社
- 株式会社サニーライフ
- 管理形態
- 全部委託
- 管理人
- 巡回
- 管理費
- 月額4,100円
- 修繕積立金
- 月額10,200円
- 駐車場
- あり
- 駐輪場
- あり
- バイク置場
- なし
- 現況
- 賃貸中
- 引き渡し
- 相談
- 特徴
-
生活を支える施設が徒歩5分圏内!再開発の【自由が丘】
暮らしやすさ・交通のアクセスが魅力!
月額賃料:82,000円
年間賃料:984,000円
お問い合わせフォームはこちら
Tel. 03-6450-2408Fax. 03-6450-2409
営業時間 10:00~19:00水曜日定休
株式会社 西家
〒150-0021 東京都渋谷区恵比寿西2-3-16 CATビル3F

